|
TRHS,
pozorovací síť určená ke sledování účninků
ZHN
Na
území bývalé ČSSR jsou rozesety stovky
prefabrikovaných objektů ÚŽ-6, které byly zařazeny
v rámci pozorovacích stanovišť zřizovaných za účelem zjišťování
chemického a jaderného napadení v případě válečného
konfliktu. Úkryty byly budovány ženijními
jednotkami příslušných útvarů v rámci Teritoriální
radiační hlásné sítě (TRHS / někdy je uváděno
též TRS) převážně na místech s dobrým
rozhledem na pravděpodobné cíle útoků. Jejich výstavba
probíhala od první poloviny šedesátých
let až do roků sedmdesátých. Na povrchu byl vždy
poblíž okop pro obrněný transportér, vlastní
objekt postrádá jakékoliv pozorovací průzory a
sloužil pouze jako pracoviště velitele družstva chráněné
před vnějšími vlivy, v případě jaderného výbuchu i pro
pohotovostní ukrytí všech členů mužstva. Objekty TRHS byly deaktivovány
počátkem 90. let, nyní se řada objektů nachází
na seznamech nepotřebného nemovitého majetku AČR,
určeného k odprodeji.
TRHS. Na počátku 60. let
vrcholilo zamoření ovzduší v Evropě (a potažmo i na
celém světě) spadem radioaktivních izotopů,
zapříčiněným podzemními i pozemními zkušebními
jadernými výbuchy na západní i východní straně
železné opony. Zatímco předtím byla měření
zajišťována pouze selektivně jednotlivými civilními
resorty (roztříštěně Civilní obrana, hygiena potravinářství), poté, mezi
lety 1962 - 1963, vznikla z podnětu chemického
vojska (genmjr. Ing. Ludvík Ondrůj, ve funkci
velitele chemického vojska v klíčovém období
1958-1968 a genmjr. Ing. Ján Franko, velitel chem.
1968-1981) centralizovaná síť určená primárně ke
sledování radioaktivní zátěže na území ČSSR.
Základní organizační jednotkou TRHS je družstvo
(minimálně ve složení 6+1), které v případě
vyhlášení stavu ohrožení obsazuje konkrétní
stanoviště, hlásku TRHS. Je přímo podřízeno
náčelníkovi okresní radiační skupiny (ORS),
vytvořené u příslušné okresní vojenské správy (OVS).
Družstvo z určeného stanoviště monitoruje parametry
jaderných výbuchů, úroveň radiace, koncentrace
bojových otravných látek, provádí meteorologická
měření v nízkých vrstvách troposféry a vysílá v
předem stanovených trasách a intervalech tříčlennou
automobilní radiační hlídku k vytyčení zamořených
zón. Veškerou činnost a naměřené hodnoty hlásí
radiostanicí náčelníkovi ORS. Pracoviště ORS
(náčelník a 4 důstojníci vyhodnocení rad. situace)
informace zpracovává (vytváří předpověď vzniku pásem
rad., chem. a biologického zamoření se zákresem do
map, organizuje doplňkový průzkum a odmořování osob,
navrhuje OVS způsob varování, překonávání a
odstranění zamoření) a výstupy poskytuje krajské
radiační skupině (KRS), vojskům a součinnostním
složkám na úrovni okresu.
 |
 |
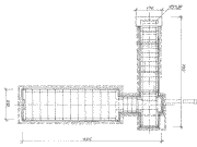
Výkresy úkrytu ÚŽ-6a
v provedení
využívaném
pro potřeby TRHS |
Typický objekt typu ÚŽ-6
zařazený do TRHS. ÚŽ-6 neboli ženijní úkryt řady
6 je typizovaný objekt prefabrikované
konstrukce vybudovaný z ženijních železobetonových
dílců (rámů), částečně
zapuštěný pod úrovní okolního terénu. Existuje
několik variant tohoto typu stálého opevněného
úkrytu, lišících se v detailech, ale i v rozměrech,
což odpovídá funkčnímu určení jednotlivých objektů
(pohotovostní, pracovní, speciální a odpočinkové, zodolněná velitelská stanoviště do úrovně pluk tvořily celé systémy vzájemně propojených
úkrytů). Společné a určující jsou pro všechny typy
unifikované stavební prvky, jak armované
betonové rámy, tak pancéřové části (poklopy, dveře,
roury komínků). Nadále se článek bude zabývat právě subtypem
ÚŽ-6a, určeným pro potřeby Teritoriální
radiační hlásné sítě.
Na povrch
vystupují dvě trubice - komínek vytápěcí soupravy a
komínek sání ventilátoru. Podlaha objektu leží 210
centimetrů pod niveletou okolního terénu (ideálně,
reálně je
však hloubka závislá na hloubce a stupni těžitelnosti místní zeminy
a také na předpokládaném stupni ohrožení nepřítelem), každý
objekt je navíc překryt přibližně jeden metr silnou
vrstvou nadložní zeminy (onen příslovečný "kopeček", charakteristický
pro objekty ÚŽ-6). Dovnitř se dle
konstituce terénu
vstupuje po několika schůdcích k vnějšímu plechovému
poklopu kryjícímu vyústění přístupové chodbičky.
Chodbičkou se sestupuje po dalších pěti schodech na
úroveň podlahy úkrytu a následují protitlakové dveře
typu ŽDV-2 z 5 mm plechu a hned v dalším příčném
rámu jsou usazena první ze tří protiplynových vrátek, ŽDV-6/I. Za nimi se v zalomení chodbičky
nachází výklenek pro uložení materiálu, suché WC a
trychtýřovitý pisoár vyústěný do trativodu pod
podlahou. Ve všech zárubních jsou v obou horních
rozích ponechány kabelové prostupy utěsněné
vazelínou. Po zmiňovaném bezpečnostním zalomení
chodbičky (doprava či doleva, kvůli zmírnění
případné tlakové vlny, prorazivší primární
protitlakové a primární protiplynové dveře, a
neutronového záření) následují
druhá a třetí plynotěsná vrátka ŽDV-6/I a ŽDV-6/II (1 mm plech) v rozestupu 150 cm,
mezi nimiž se nachází protiplynová odmořovací
předsíň s asanačním zařízením, umožňující bezpečný přechod ze zamořené
vnější atmosféry do hlavní místnosti o půdorysu
185x600 cm a výšce 200 cm. Zde bylo pracoviště
velitele družstva, vybavené radiostanicí,
automatickým signalizátorem otravných látek AS-67,
ochrannými oděvy a
zásobami pro několikadenní izolaci. Uvnitř úkrytu
byla též uložena osobní výstroj mužstva. Úkrytová
místnost byla s vnějším pozorovacím stanovištěm v
zemním okopu (tam byl umístěn velitelský dalekohled
TZK, druhý AS-67 a chemický průkazník) spojena
pomocí linkového telefonního kabelu. V zadní stěně místnosti je potom ještě snadno probouratelná
cihlová zazdívka průlezu do šachtičky nouzového
východu.
Veškeré vnitřní vybavení úkrytové místnosti
instalovali příslušníci družstva až při aktivaci
objektu (v době míru byl vstup objektu překryt
prefabrikátovými deskami či plechovým poklopem a
dveře zapečetěny, uvedení objektu do bojové
pohotovosti bylo otázkou několika hodin). Při
zaujetí pozorovacího stanoviště mužstvo nejprve
aktivuje přilehlý úkryt ÚŽ-6, naskladňuje chemický a
zdravotnický materiál, ženijní nářadí, osobní zbraně
a munici, instaluje dvě ocelové skládací
palandy, stůl se židlemi, filtroventilační
soupravu (FVKPM-1E se dvěma filtry FP-50, či FVKPM-2
s kolonou tří FP-50), vytápěcí soupravu a jednoduchý
věšák na ochranné obleky, přichycený ke stěně.
Současně s naskladňováním část družstva venku
provádí přístupový zákop k pozorovacímu okopu. Objekty sítě TRHS, stojící často
na odlehlých vrcholcích v kopcovitém terénu, nebyly
elektrifikovány, počítalo se s obrněným
transportérem (či samostatnou externí
elektrocentrálou) stojícím v blízkém okopu pro
techniku, jako zdrojem
elektrické energie pro přístroje i k improvizovanému
osvětlení pomocí osvětlovací soupravy.
Tyto úkryty byly pochopitelně
umisťovány na význačná rozhledová místa s výhledem
na předpokládaný významný strategický cíl, většinou
celou městskou aglomeraci, přičemž právě
teritoriální, čili územní pojetí TRHS předurčovalo
tyto objekty jako zázemí pro družstvo vykonávající
sledování situace nad celou oblastí v širším slova
smyslu. S příchodem nových bojových prostředků v
podobě zbraní hromadného ničení můžeme tedy vytušit
změnu v i celkové koncepci přípravy obrany teritoria
státu oproti padesátým letům,
kdy bylo zajišťováno pozorování pouze konkrétních
průmyslových a vojensko-strategických objektů.
Činnost družstva radiační hlásné sítě (dle
Chem-2-8/č)
Soupis krytů ÚŽ-6 TRHS ve
Východních Čechách
TRHS versus ROC & UKWMO monitoring posts
JINÉ
RELEVANTNÍ PRAMENY:
|
»
Chem-2-7/č "Činnost okresní
radiační skupiny teritoriální radiační hlásné
sítě"
|
MNO, Praha 1978 |
|
»
Chem-2-8/č "Činnost družstva
radiační hlásné sítě"
|
MNO, Praha 1977 |
|